fbpx
aktivitetsområder

Modulære helårshus

UniqueHOUSE by Unihouse

Vi tilbyr et ferdig modulært helårshus, som fungerer utmerket både som komfortabelt feriehus og som helårs fritidsbolig. Vår gjennomtenkte modell med høy standard er tilgjengelig med en gang, og kombinerer moderne design med funksjonalitet, samtidig som den sikrer komfort gjennom alle årstider. Våre modulhus er klare til umiddelbar montering, noe som gjør det mulig å raskt realisere drømmen om egen fritidsplass. I møte med dynamiske endringer på eiendomsmarkedet er modulhuset for helårsbruk fra Unihouse et svar på de økende behovene hos investorer som søker raske, moderne og pålitelige boligløsninger.


Hvorfor velge våre modulære helårshus?

Helårshus i modulær konstruksjon er moderne løsninger som tilbyr ferdige boenheter med høy standard. Den prefabrikerte konstruksjonen muliggjør rask montering, noe som gjør dem til et ideelt valg både for forretningsinvestorer og private personer. Husene utmerker seg med energieffektivitet, holdbarhet og mulighet for bruk hele året. Modulhus blir et utmerket alternativ for de som ønsker et komfortabelt sted å slappe av eller vil investere i et lønnsomt prosjekt. Helårshus med liten bruksflate fungerer godt som funksjonelle løsninger på fritidstomter eller som økonomiske startboliger.



Effektiv byggeprosess og optimal bruksflate

Moderne prefabrikkerte hus, som våre Unihouse-hus, gjør det mulig å betydelig forkorte byggeprosessen – ferdige moduler leveres til byggeplassen, hvor de på noen timer blir et fullt funksjonelt sted å bo. Modulær teknologi gjør at bygging av små modulhus går mye raskere enn ved tradisjonell bygging. Dette er en ideell løsning for personer som verdsetter moderne tilnærming til bygging, som kombinerer teknologi med praktisk tilpasning til egne boligbehov. Takket være gjennomtenkt konstruksjon med trekonstruksjon, tilbyr selv små prefabrikkerte hus i 3D-teknologi maksimal termisk komfort og ergonomisk utnyttelse av plass. Ferdige modulhus er utstyrt med full teknisk infrastruktur og moderne interiør.

Całoroczny modułowy domek wypoczynkowy UNIQUEhouse kuchnia
Całoroczny modułowy domek wypoczynkowy UNIQUEhouse kuchnia

Helårshus i modulær konstruksjon – løsninger for næringslivet og private investorer

Bedriftskunder

  • Eiere av campingplasser og fritidsanlegg: Modulær konstruksjon gjør det enkelt å utvikle investeringen ved å legge til flere hus etter hvert som etterspørselen øker.

  • Investorer som søker rask avkastning: Modulhus gjør det mulig å starte korttidsutleie allerede 2–3 uker etter kjøp, slik at du på forhånd kan planlegge beliggenhet og belegg.

  • Utbyggere: Lavere byggekostnader (opptil 40 % sammenlignet med tradisjonelle metoder) og kortere gjennomføringstider øker lønnsomheten i prosjektene.

Private kunder

  • Eiere av byggeklare tomter: Ideell løsning for de som ønsker et sekundærhus uten å gi opp bylivet. Innen et døgn etter montering på ferdig fundament, kan man nyte fritidsplassen.

  • Investorer i sesongutleie: Modulhus gir avkastning på investeringen på 3–5 år takket være høy etterspørsel etter unike objekter i naturskjønne omgivelser.

  • Livet borte fra byens kjas og mas: Energieffektiv konstruksjon og mulighet for helårsbruk skaper perfekte forhold for avslapning.

Helårig modulhus fra Unihouse

Tekniske data og materialer
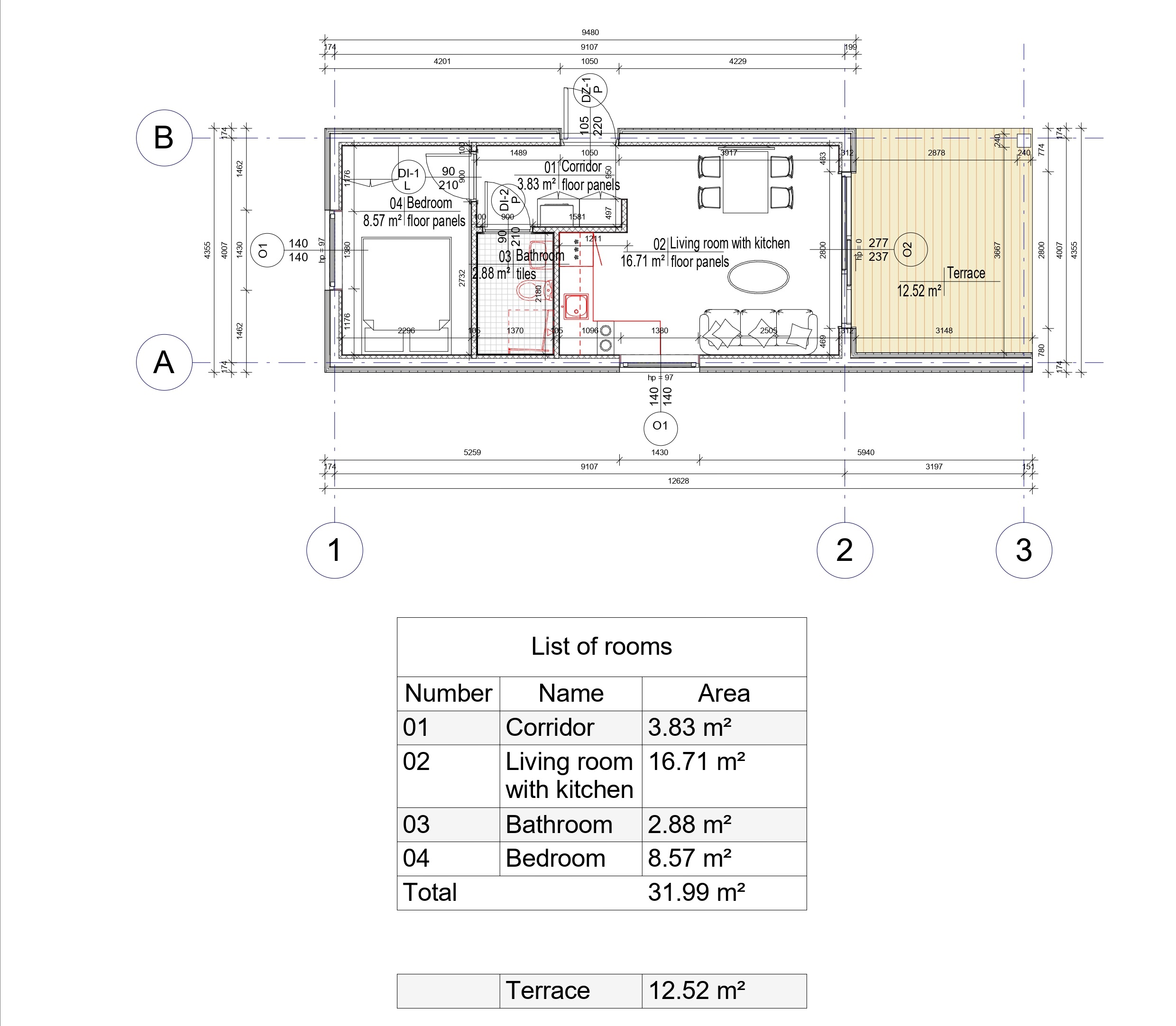
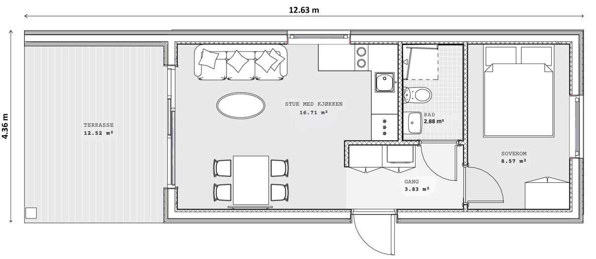
Våre helårige modulhus har en solid trekonstruksjon og er dermed miljøvennlige. Husets ytre mål er 12,63 m i lengde og 4,36 m i bredde, og gir funksjonell plass klar til bruk umiddelbart etter montering, ettersom de leveres nøkkelferdige. En ekstra fordel ved husets arkitektur er den integrerte terrassen med komfortabel plass til avslapning. Vegger, gulv og tak er isolert med mineralull, noe som gir utmerket termisk isolasjon, ideell for helårsbruk.

Utstyr og standard for ferdigstilling
Helårige modulhus skiller seg ut med nøye utvalgte materialer. Taket er dekket med membran som sikrer holdbarhet og motstand mot værforhold. Husets fasade er laget av tre eller moderne stålplater med fals. Huset varmes opp med klimaanlegg med varmefunksjon eller elektriske radiatorer. I tillegg finnes det elektrisk håndkletørker på badet. Vinduene er trelags, i PVC eller tre med aluminiumsbekledning. Moderne dører både utvendig og innvendig. Badet er fullt utstyrt med sanitærutstyr og speil. Kjøkkenet er utstyrt med møbler og hvitevarer som hever standarden og sikrer full funksjonalitet. Huset kompletteres med moderne innendørs og utendørs belysning.

Bruk og komfort
Våre modulhus er laget for helårsbruk, uavhengig av værforhold. Takket være nøye isolering og gjennomtenkt ventilasjon tilbyr rommene optimal termisk komfort. I tillegg har bad og kjøkken høy kvalitet på finish og funksjonelle enheter som gjør daglig bruk mer behagelig. Takket være sin allsidighet kan Unihouse-modulhuset brukes som fritidshus eller som helårig bolig for rekreasjon. Våre hus er klare til umiddelbar innflytting.

Ring oss:
Våre konsulenter er tilgjengelige fra man - fre: 09.00 - 17.00
skrive til oss:
Våre rådgivere vil kontakte deg innen 48 timer
Send oss en forespørsel:
Våre rådgivere vil kontakte deg innen 48 timer
Całoroczny modułowy domek wypoczynkowy UNIQUEhouse wyjście na taras

Velg modulhus fra den velprøvde produsenten Unihouse!

Når du velger helårsmodulhus fra UniqueHOUSE by Unihouse, velger du komfort, rask gjennomføring og høy kvalitet. Våre hytter er tilgjengelige umiddelbart, noe som betyr at du slipper å bekymre deg for lang ventetid eller kostbare endringer. Velg et moderne, energieffektivt hus som vil være perfekt for helårsbruk.

Ikke vent – bestill ditt UniqueHOUSE modulhus i dag og nyt komforten som moderne modulbygging gir. kontakt oss på oferta@unihouse.pl.

Utforsk detaljene i tilbudet, inkludert tekniske parametere LAST NED

> 20 ÅR

bransjeerfaring

4876

bygde leiligheter

24H/7

råd og støtte fra salgsavdelingen

Helårige modulhus

Trenger du mer informasjon?


Ring oss på +48 85 730 34 77, send e-post til oferta@unihouse.pl eller fyll ut skjemaet – vår konsulent svarer på alle spørsmål mellom kl. 09:00 og 17:00.

Całoroczny modułowy domek wypoczynkowy UNIQUEhouse  tył budynku
UNIHOUSE SA

ul. Rejonowa 5,
17-100 Bielsk Podlaski

(+48) 85 730 34 77
oferta@unihouse.pl

Behandlingsansvarlig for dine personopplysninger er UNIHOUSE S.A., ul. Rejonowa 5, 17-100 Bielsk Podlaski.

Helårs feriehus - FAQ

Er et modulært helårs hus tilgjengelig med en gang?

Ja, vi tilbyr ferdige modulhus for helårsbruk, noe som betyr at du kan starte prosjektet ditt umiddelbart. Rask byggeprosess, holdbar konstruksjon og lave driftskostnader er hovedfordelene med modulhus som kan brukes hele året.

Er modulhus for helårsbruk?

Ja, våre modulhus er designet som helårs feriehus. Takket være moderne termisk isolasjon er de egnet både sommer og vinter.

Kan et modulært helårs hus brukes som feriehus?

Selvfølgelig! Modulhus kan brukes både som feriehus og som lavkost helårshus. Takket være solid termisk isolasjon og gjennomtenkt konstruksjon gir modulhusene ideelle forhold både for helgeturer og lengre ferier. Denne løsningen kombinerer funksjonalitet, komfort og estetikk, samtidig som den optimerer driftskostnader. Lite areal betyr ikke kompromisser – små modulhus kan være svært komfortable og godt designet. Se selv!

Er et modulært helårs hus egnet for utleie?

Ja! Våre modulhus – takket være sertifisert konstruksjon (ISO 9001) og enkel vedlikehold – beholder opptil 95 % av verdien ved langtidsutleie.

Hva er driftskostnadene for modulhus? Hvordan er energiforbruket?

Hele konstruksjonen er moderne designet. Våre modulhus er energieffektive, noe som reduserer kostnader til oppvarming og drift. Lavere oppvarmings- og driftskostnader gir reelle langsiktige besparelser, som gjør modulhus til en enda mer lønnsom investering.

Hvor lang tid tar monteringen av et modulhus?

Bygging av modulhus går svært raskt og tar bare noen dager, noe som betydelig reduserer byggetiden sammenlignet med tradisjonell bygging. Dette er mulig takket være ferdige prefabrikkerte moduler – enkel montering sparer tid.

Trenger modulhus byggeløyve?

Modulhus med dimensjoner 12,63 m x 4,36 m kan bygges med melding, noe som betyr at byggeløyve ikke er nødvendig hvis de oppfyller kravene til frittstående fritidshus eller helårshus. Meldingsprosessen er enklere og raskere enn tradisjonell byggesøknad. Med oss går byggingen raskt, smidig og lovlig.

Kan jeg se modulhuset før kjøp?

Ja, det er mulig å se en ferdig modell hos Unihouse, Rejonowa 5, Bielsk Podlaski 17-100. Kontakt oss for avtale: oferta@unihouse.pl

Er modulhuset utstyrt med alle nødvendige installasjoner?

Ja, huset har alle nødvendige vann-, avløps-, elektriske og oppvarmingsinstallasjoner. Huset er dermed klart til innflytting umiddelbart etter montering.

Hva er størrelsen på modulhuset?

Utvendige mål: 12,63 m lengde, 4,36 m bredde. Etasjehøyde: 2,55 m. Bruksareal: 31,99 m², bebygd areal: 55,07 m².

Hvor mange standarder for innredning tilbys?

Vi tilbyr én ferdig standard for helårshus. Husene er nøye ferdigstilt og utstyrt, klare til innflytting umiddelbart.

Hvilke materialer brukes til isolasjon?

Vegger: 150 mm mineralull, gulv: 240 mm isolasjon, tak: 240 mm mineralull.

Hva finnes i kjøkken og bad?

Kjøkken: induksjonsplate, vask, kjøkkenvifte og kjøkkenkran.
Bad: dusjkabinett, WC-kompakt, og kvalitetsmaterialer.

Er modulhuset energieffektivt?

Ja, moderne teknologi og isolasjonsmaterialer sikrer lavt energiforbruk, lavere driftskostnader og komfort hele året.

Hvilke dokumenter trengs for bygging?

I de fleste tilfeller er byggemelding nok. Vårt team hjelper med alle formaliteter, fra tillatelse til ferdigmelding og overtakelse.

Kan modulhuset utvides?

Ja – modulær konstruksjon gjør det mulig å legge til ekstra segmenter, som ekstra soverom. Våre modulhus er bygget i tre og gir utmerket isolasjon og energieffektivitet.

Hva er prisen på et modulhus fra Unihouse?

Prisen avhenger av mange faktorer, spesielt kundens individuelle behov. Vi tilbyr full prosjektgjennomføring og høy kvalitet. Vi leverer modulhus i hele Polen og i utlandet, inkludert Skandinavia. Se våre referanser.

Eksempler på prosjekter

Save
Cookies user preferences
We use cookies to ensure you to get the best experience on our website. If you decline the use of cookies, this website may not function as expected.
Accept all
Decline all
Read more
Analityczne pliki cookies
Te pliki cookie mają na celu w szczególności uzyskanie przez administratora serwisu wiedzy na temat statystyk dotyczących ruchu na stronie i źródła odwiedzin. Zazwyczaj zbieranie tych danych odbywa się anonimowo.
Google Analytics
Accept
Decline
Niezbędne
Niezbędne pliki cookies
Te pliki cookie są konieczne do prawidłowego działania serwisu dlatego też nie można ich wyłączyć z tego poziomu, korzystanie z tych plików nie wiąże się z przetwarzaniem danych osobowych. W ustawieniach przeglądarki możliwe jest ich wyłączenie co może jednak zakłócić prawidłowe działanie serwisu.
Accept
Decline